casa en Benetússer

Promotor: Privado
Proyecto: año 2018
Obra:
Localización: Benetússer, València

La vivienda, antigua casa familiar, se encuentra en la localidad de Benetússer. Se trata de una planta baja, a modo de garaje, y una primera planta con patio trasero y terraza. Esta planta es donde comienza la oportunidad de desarrollar un nuevo habitar y de generar nuevas relaciones espaciales en estas cuatro paredes. Son varias las necesidades a resolver en este punto, como la adecuación del espacio a unas mejores calidades (aislamientos e instalaciones), así como la reparación de los daños que el tiempo ha dejado en ella como los problemas de filtraciones de la ampliación que se hizo en el patio interior. Igualmente, deberán resolverse aspectos más diversos y humanos como la apropiación del espacio. Al final, se trata de un proyecto que resuelva las nuevas necesidades del cliente y que sea capaz de adaptarse a los futuros cambios, al devenir.

Un espacio que adaptar a una nueva forma de habitar, preparado para ser una nueva vivienda. Un espacio que se acopla a unas nuevas necesidades y que se prepara para las futuras. Un lugar para estar solo leyendo o para celebrar una fiesta de fin de master.  Un espacio para diferentes tiempos, pero un mismo habitante.

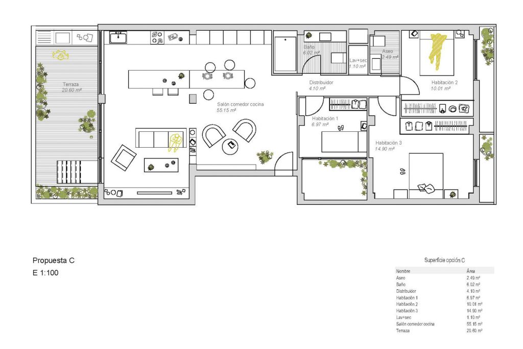
Tras el estudio de las posibilidades que ofrecía la vivienda se llegó a varias soluciones. Fruto del trabajo del estudio y el cliente se ha ido trabajando en las necesidades y en lograr una futura vivienda que dé cabida a todas ellas

El proyecto finalmente adopta la opción C, una solución adaptada a las necesidades del cliente, y que mantiene la relación de la zona de día. Para mejorar las prestaciones térmicas de la vivienda, el contorno se reforzará con un sistema de trasdosado de aislamiento+pladur, así como con la mejora de las ventanas. La cubierta que se retira se sustituirá por una cubierta de panel sándwich sobre unos perfiles metálicos, teniendo especial cuidado en resolver las filtraciones existentes.