el Replà

Promotor: Ajuntament de Les Alqueries.
Plan Director: año 2010
Proyecto de Consolidación y Obra: año 2018
Localización: Calle Caixer, esquina camino Valencia. Les Alqueries, Castellón.


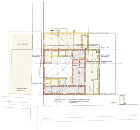
Es un conjunto arquitectónico vinculado a las alquerías que salpican la huerta del municipio, espacios cuyas parcelas permanecen aisladas al tiempo que quedan rodeadas por cultivos y acequias. Es aquí donde encontramos el origen de Alquerías como lugar, es por ello que resulta importante preservarlos como parte de la identidad y del patrimonio cultural valenciano. En algunos elementos todavía aparecen elementos que datan del s. XVII.